Projet Elsa – Rénovation d’appartement à Rennes


Projet Elsa clin d’oeil à Elsa Zylberstein, actrice française.

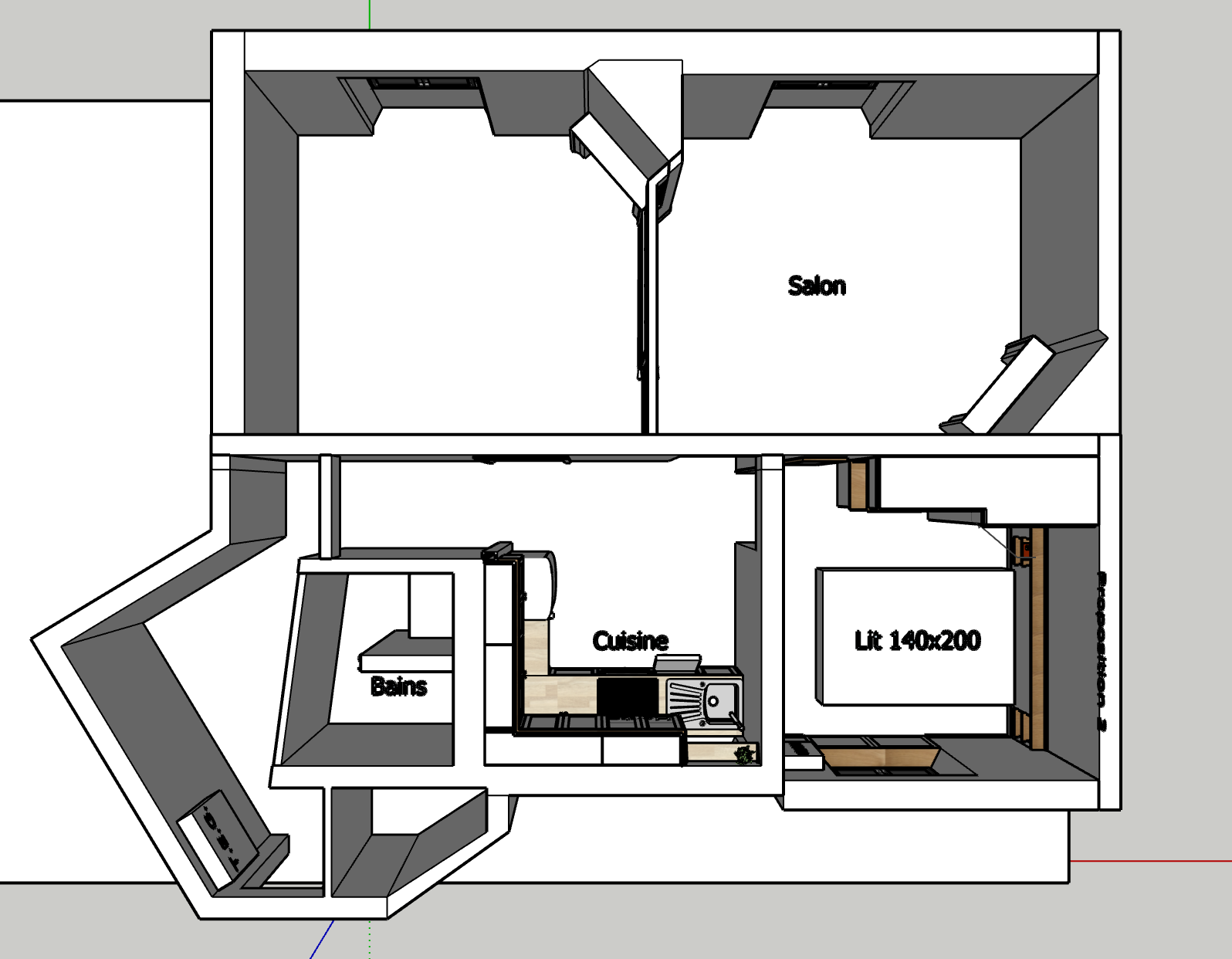
Contexte : 

Nouvelle acquisition, les clients nous ont confié la rénovation totale de leur appartement. Ils ont souhaité recréer une séparation dans leur pièce de vie à l’aide d’une cloison vitrée.

En plus de cette modification de cloisonnement, nous avons rénové la cuisine et la chambre.

Description :

Cuisine : 

Une partie des meubles bas a été conservée, mais la disposition des meubles a été modifiée, la cuisine jusque-là pensée en « i » a été repensée en « l », avec l’ajout de nombreux meubles hauts.

Pièce de vie : 

Modification de l’accès, une des portes a été refermée à l’aide d’un châssis fixe et d’étagères en partie basse.

Cloison placo surmontée d’une grande verrière avec une porte vitrée.

Chambre : 

Une nouvelle fois la disposition des meubles a été modifiée, en inversant la tête de lit, un grand placard a été réalisé sur mesure.

Matériaux utilisés :

Façades moulurées : Panneaux MDF laqués – laque satinée blanche
Intérieur caisson : Panneaux mélaminé – blanc
Panneaux plaqués essence fines – chêne vernis
verre sécurit

Partenaires

pour le cloisonnement, LBM Isolation
EURL Eric Bobet pour la plomberie,
Sten Kermaïdic pour l’électricité,
Les Aménagements Brice Martin pour la fabrication et l’installation des agencements

et de la verrière.

Retour en haut